LIVING DINING KITCHEN

プレミアム住戸
上層階ならではの眺望と、洗練された住まい。
1フロア2邸のプライベートフロアをご用意しました。(E・Fタイプ)
Premium1
上質を愉しむ、開放のリビングダイニング。約2,700〜2,800mmのゆとりある天井高が生み出す、格別の広がり。誇りと安らぎに満ちた、贅沢な時間がここにあります。
※一部下がり天井あり
Premium2
プレミアム住戸は全邸角住戸、1フロア2邸という贅沢な構成。光と風を自在に取り込みながら、プライバシーを高めた設計が、邸宅としての品格を際立たせます。
Premium3
大きな開口が、光と眺めをまっすぐに取り込むダイレクトウィンドウ。外の景色と室内が一体となり、伸びやかで開放的な空間を描き出します。その心地よさが、日常の中に上質な安らぎをもたらします。
Premium4
上質なホテルを思わせる内廊下設計。外部からの視線を遮り私邸へのアプローチに上質な気配を添える。静寂と気品を湛える共用空間が、邸宅としての品格を高めます。
※6階〜14階
Premium5
90㎡超〜100㎡超の広さが叶える、邸宅のゆとり。ゆるやかに流れる時間と、洗練された暮らしの舞台がここに。広さの先にある、上質という価値をご堪能いただけます。
3LDK+WIC+SIC+N
■住戸専有面積/
106.92㎡(約32.34坪)
(内、防災備蓄倉庫面積/1.07㎡、専用ゴミ置場面積/0.47㎡含む)
■バルコニー面積/10.44㎡(約3.15坪)
■サービスバルコニー面積/2.15㎡(約0.65坪)
専有面積100㎡超、明るく開放感あふれる3LDK南東角住戸プラン。
収納
床暖房
アウトポール
専用ゴミ置場(E・Fタイプ)
※掲載の間取り図面は開発段階のもので、設計・施工上の都合により変更する場合があります。※方位記号は若干誤差があります。正確な方位については設計図書でご確認ください。※E、Fタイプのみとなります。
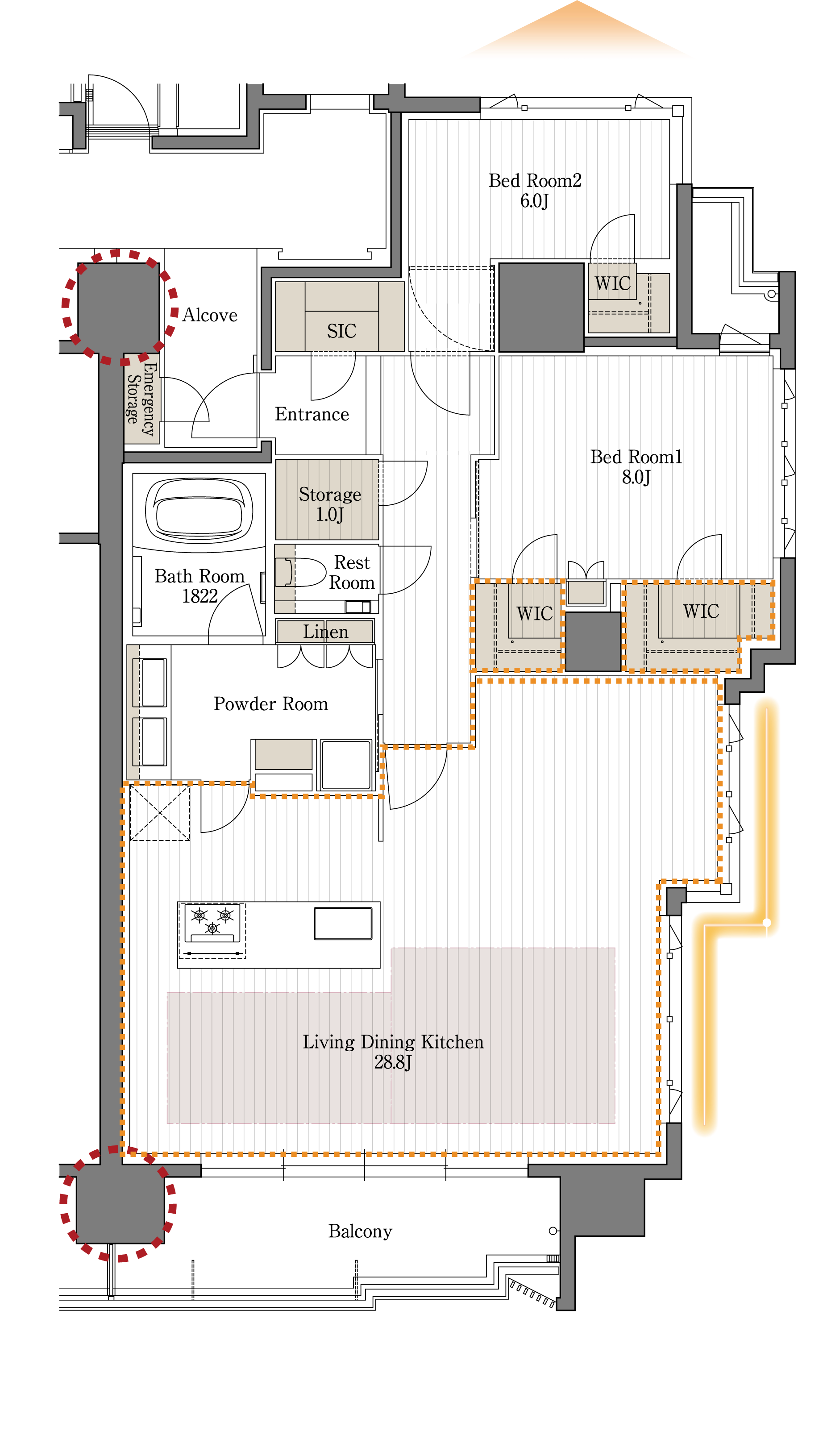
2LDK+WIC+SIC+N
■住戸専有面積/
106.92㎡(約32.34坪)
(内、防災備蓄倉庫面積/1.07㎡、専用ゴミ置場面積/0.47㎡含む)
■バルコニー面積/10.44㎡(約3.15坪)
■サービスバルコニー面積/2.15㎡(約0.65坪)
2LDK、100㎡の贅。
ゆとりという、豊かさ。
収納
床暖房
アウトポール
専用ゴミ置場(E・Fタイプ)
※掲載の間取り図面は開発段階のもので、設計・施工上の都合により変更する場合があります。※方位記号は若干誤差があります。正確な方位については設計図書でご確認ください。※E、Fタイプのみとなります。