SOUTH COURT

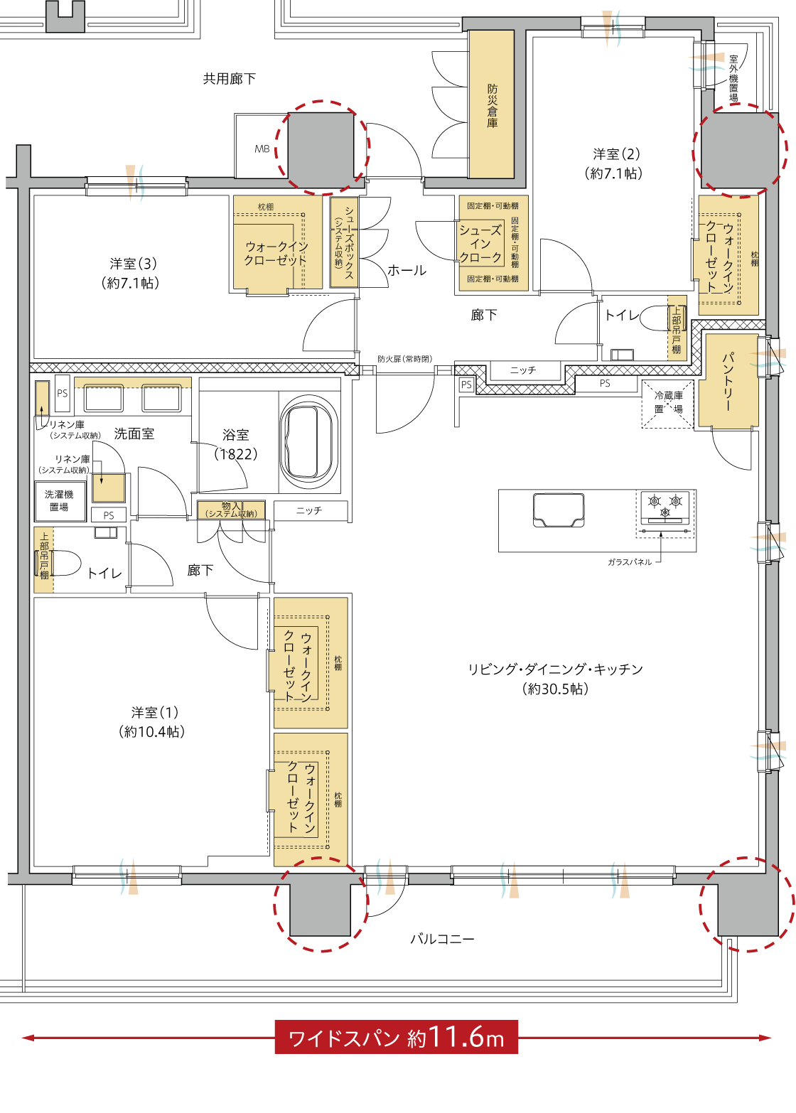
SJTYPE

3LDK
+P+4WIC+SIC

□専有面積/
134.18(約40.58坪)
防災倉庫面積
1.97㎡(約0.59坪)含む
□バルコニー面積/
19.71㎡(約5.96坪)
□室外機置場面積/
2.47㎡(約0.74坪)
  • アウトポール
  • 防災倉庫
  • ウォークインクローゼット
  • シューズインクローク
  • 約30.5帖のLDK
  • 南向き
EAST COURT WEWST COURT SOUTH COURT
  • アウトポール設計
  • 収納
  • 通風
  • 採光
  • 耐火遮音壁
  • SIC=シューズインクローク
  • WIC=ウォークインクローゼット
  • P=パントリー

※掲載の間取りは、計画段階の図面を基に描き起こしたもので、一部変更が生ずる場合があります。
専有面積は建築基準法による壁芯計算で表示し、小数点第3位を切り捨てております。不動産登記上の内法計算による登記面積はこれより少なくなります。※マリオンの位置は省略しています。

間取り一覧に戻る